Appartement Res. Odette Verstraetehelling 4
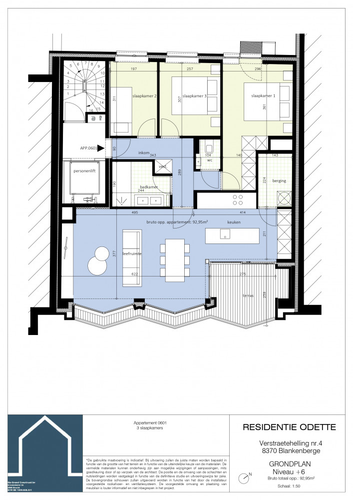
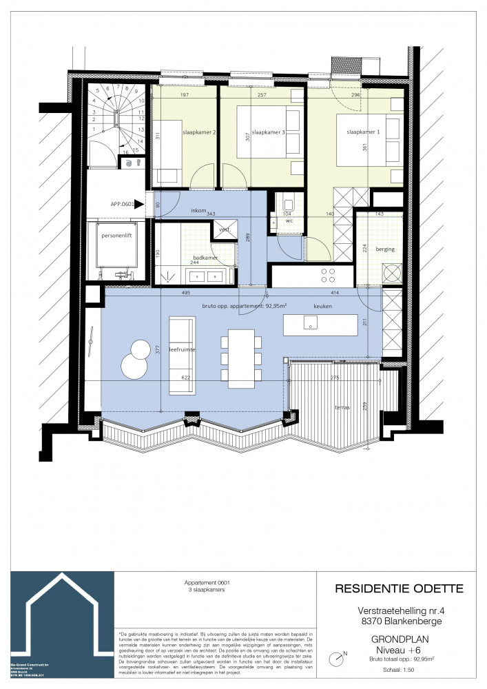
Appartement 06.01
Omschrijving
Residentie "Odette" is een standingvol nieuwbouwproject met zicht op zee, gelegen aan de Zeedijk en op wandelafstand van het centrum van Blankenberge.
Dit hedendaags project met tijdloze architectuur bestaat uit 12 appartementen (1 appartement per verdieping). De appartementen kenmerken zich door een bijzonder ruime leefruimte (10 meter breed), 3 zeer ruime slaapkamers en een ruim, goed georiënteerd terras met zeezicht.
+++ Inclusief private berging in de kelder (met stopcontact en verlichting).
+++ Inclusief 2 fietshaken per appartement in gemeenschappelijke fietsenberging.
+++ Gemeenschappelijk vuilnislokaal.
+++ Kwalitatieve materialen en hoge handelswaardes.
+++ Geothermische warmtepomp en vloerverwarming.
+++ Zeer energiezuinig (max. E-peil <30).
+++ Mogelijk om aan te kopen aan het verlaagd BTW-tarief van 6%.





