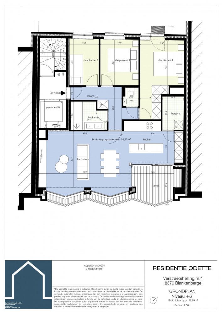
Appartement Rés. Odette Verstraetehelling 4
Appartement 06.01
Déscription
La résidence "Odette" est un nouveau projet de construction de haute qualité, situé sur le Zeedijk et à quelques pas du centre de Blankenberge.
Ce projet contemporain à l'architecture intemporelle se compose de 12 appartements (1 appartement par étage). Les appartements se caractérisent par un espace de vie particulièrement spacieux (10 mètres de large), 2 ou 3 chambres très spacieuses et une terrasse spacieuse et bien orientée avec vue mer.
+++ Débarras privé au sous-sol (avec prise et éclairage) inclus.
+++ 2 Crochets à vélos par appartement dans le local à vélos communal inclus.
+++ Local poubelle communal.
+++ Matériaux de qualité et valeurs commerciales élevées.
+++ Pompe à chaleur géothermique et chauffage au sol.
+++ Très économe en énergie (niveau E max. <30).
+++ Possibilité d'achat au taux de TVA réduit de 6%.





