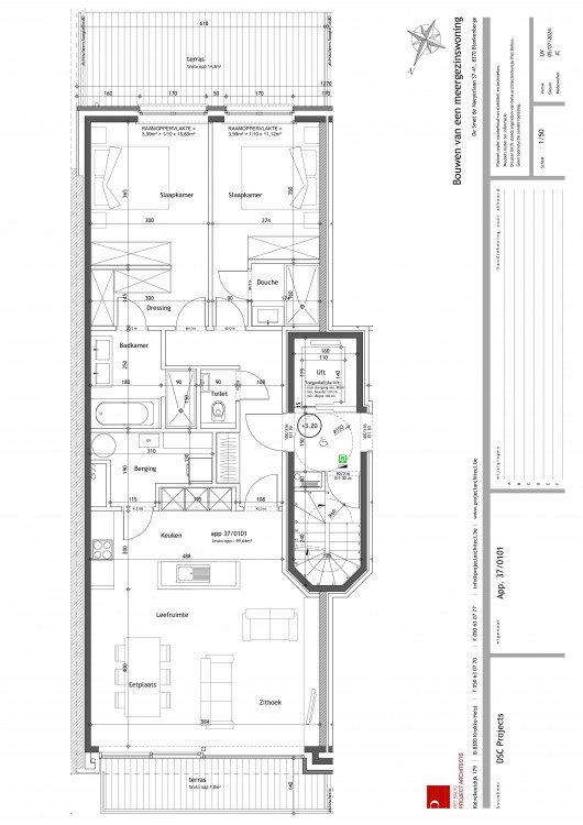
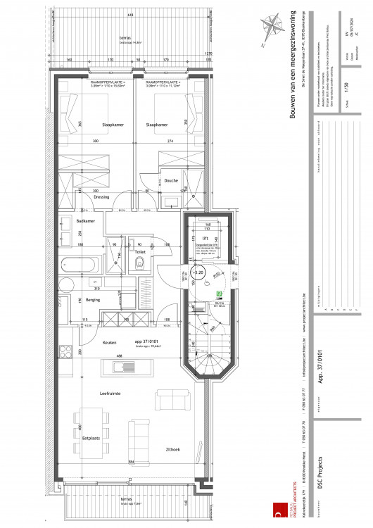
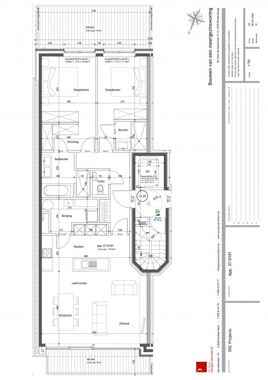
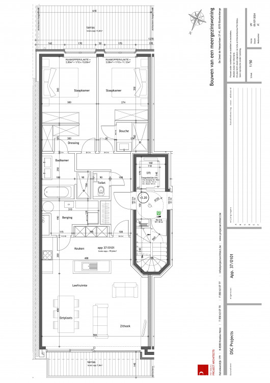
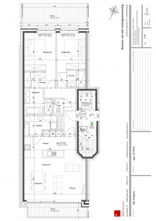
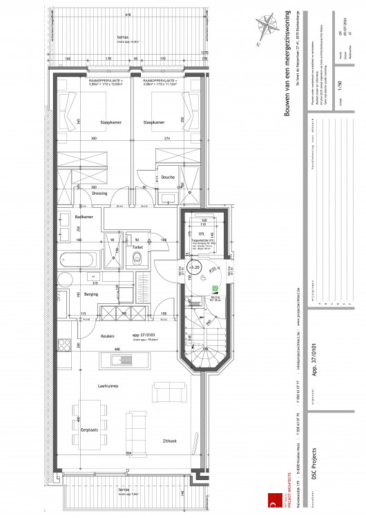
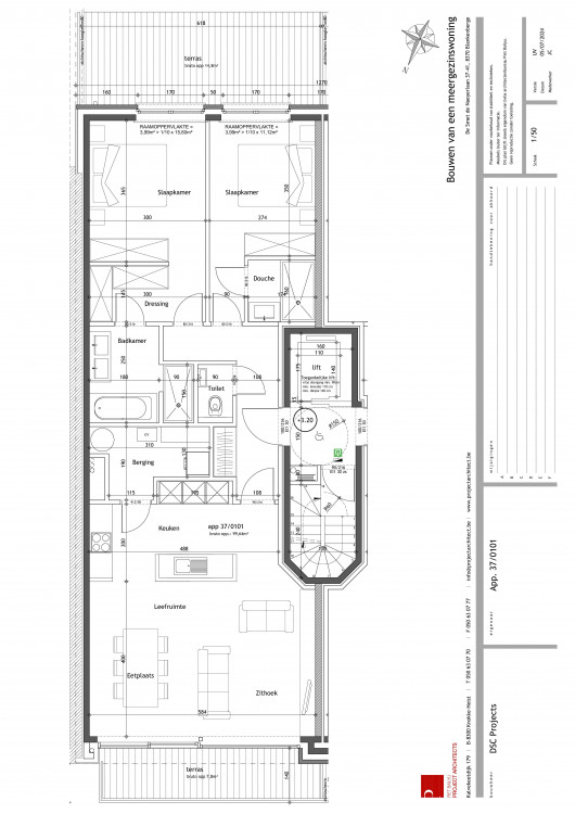
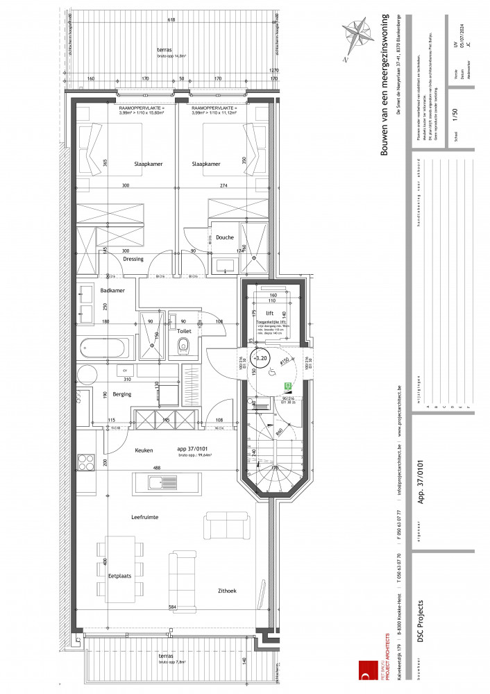
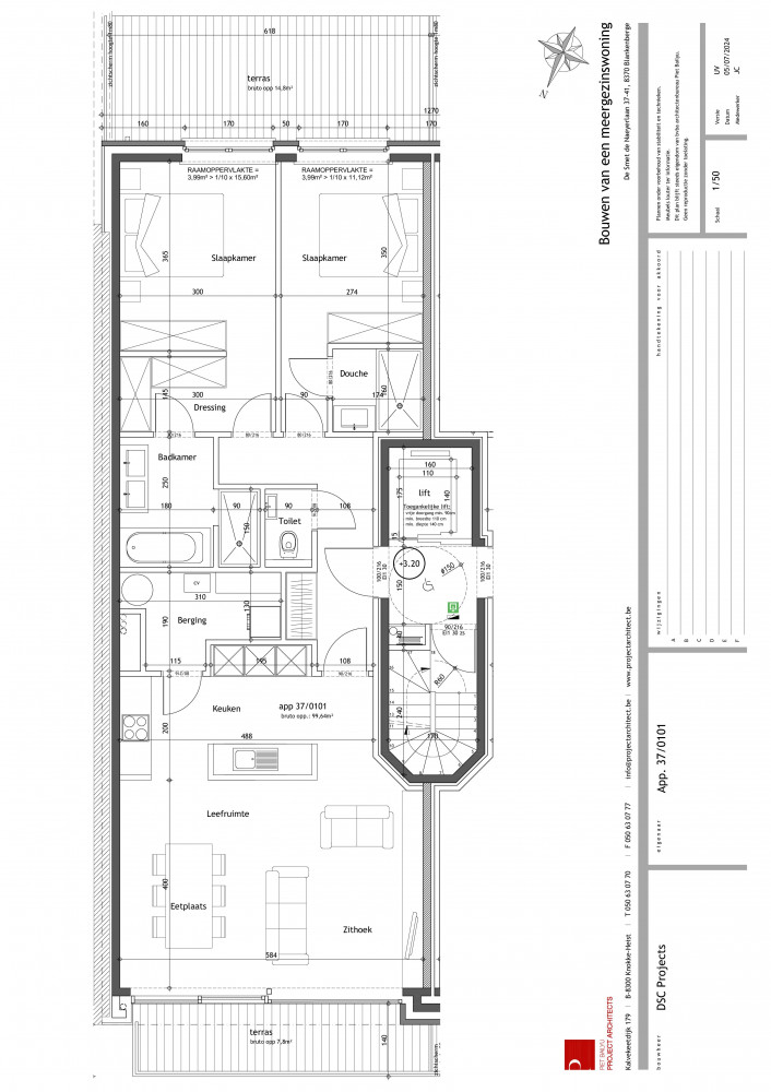
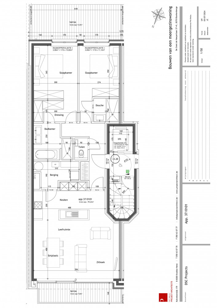
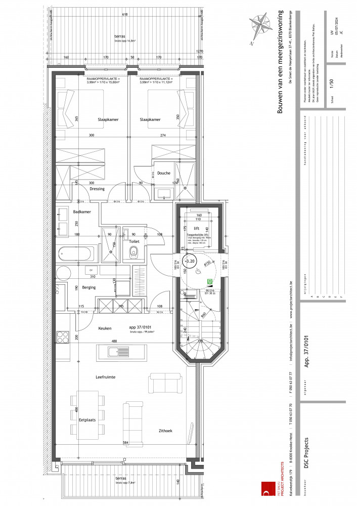
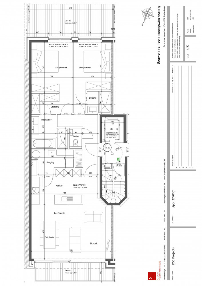
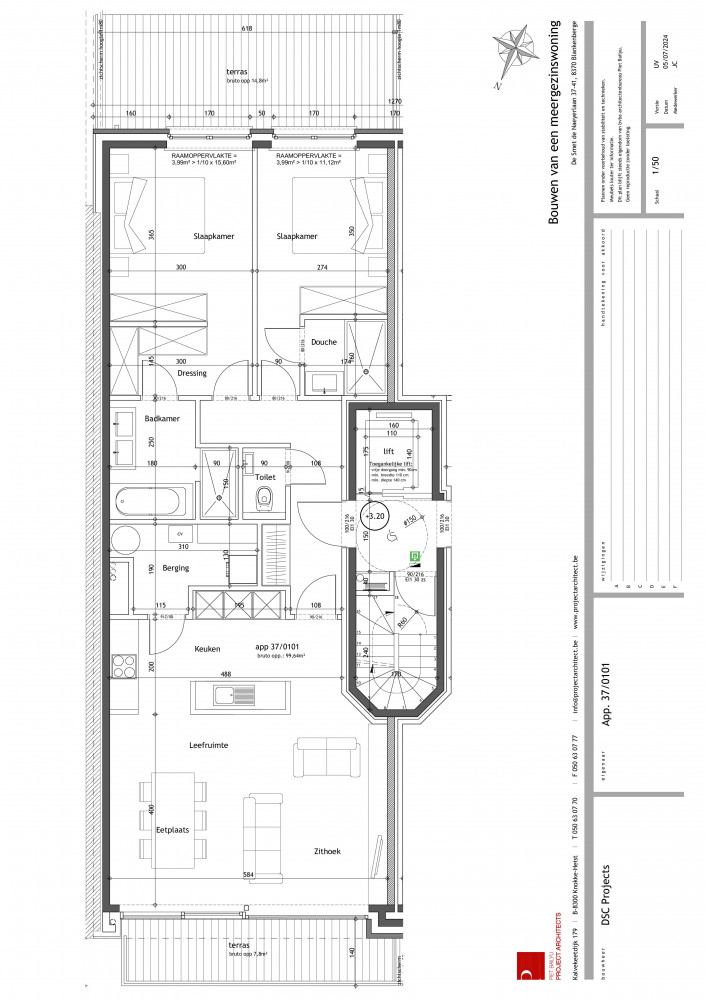
Appartement Res. Achille De Smet de Naeyerlaan 39
appartement 01.01
Omschrijving
Residentie "Achille" is een hedendaags nieuwbouwproject met hoogstaande afwerking met fantastisch zicht op de jachthaven en het Leopoldpark, vlakbij Zeedijk en Grote Markt.
Dit project bestaat uit:
- 6 zeer ruime 2-slaapkamerappartementen;
- 2 duplexappartementen met 2 slaapkamers;
- 10 garages;
Deze BEN-appartementen worden gekenmerkt door hun grote leefruimtes, fantastische terrassen vooraan én achteraan, 2 badkamers per appartement en zeer ruime slaapkamers.
+++ Warmtepomp in combinatie met vloerverwarming.
+++ 2 Fietsenruimtes.
+++ Vuilnislokaal.
+++ individuele bergingen in de kelder.
+++ Hoge handelswaardes.
+++ Garages in het gebouw
+++ Grote terrassen aan de voor- en achterzijde.





