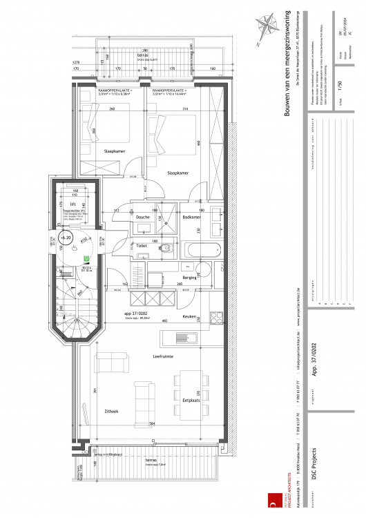
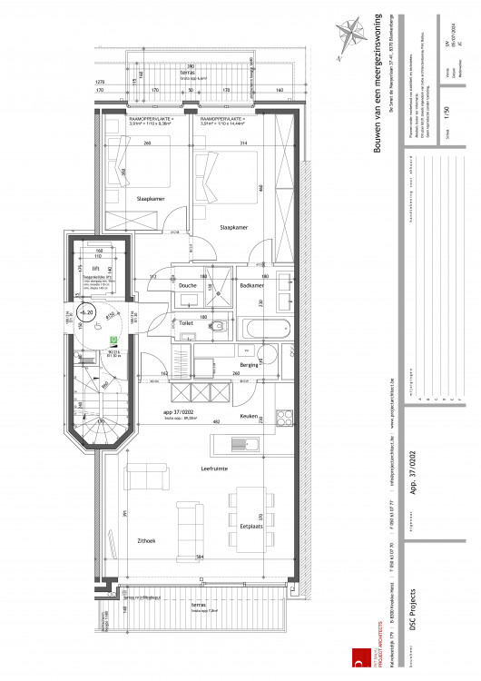
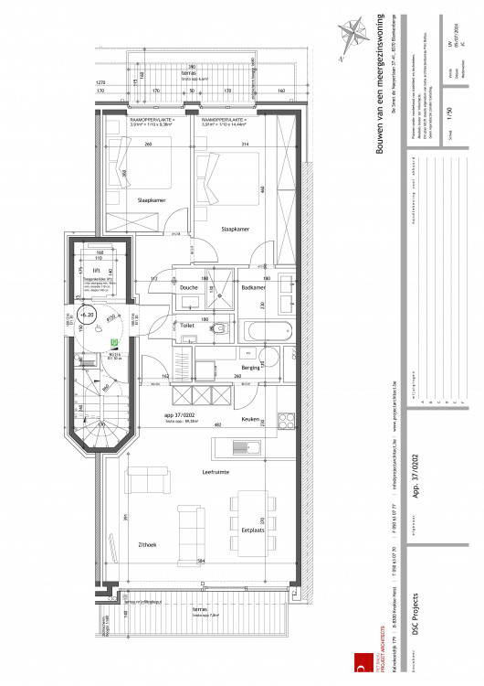
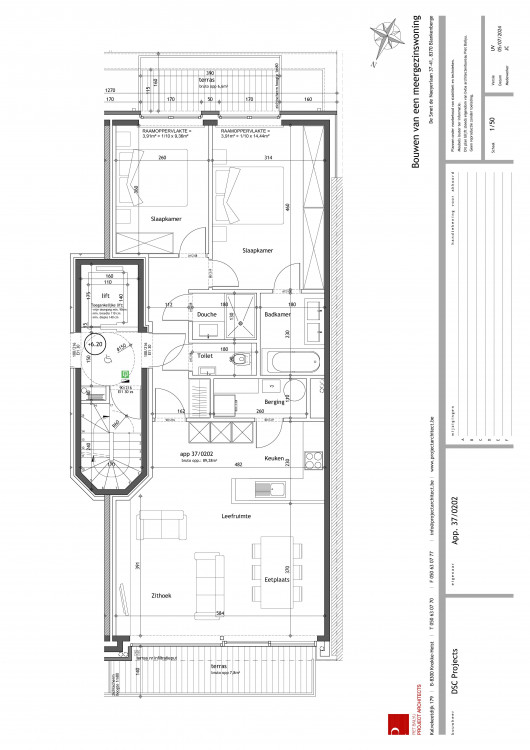
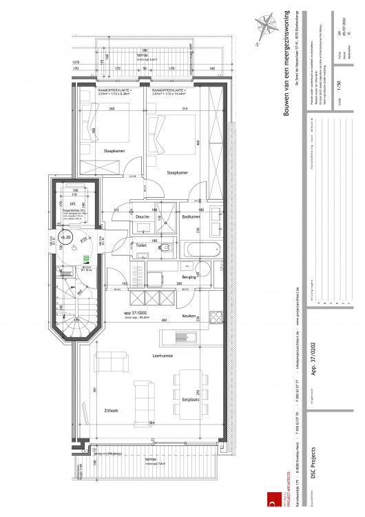
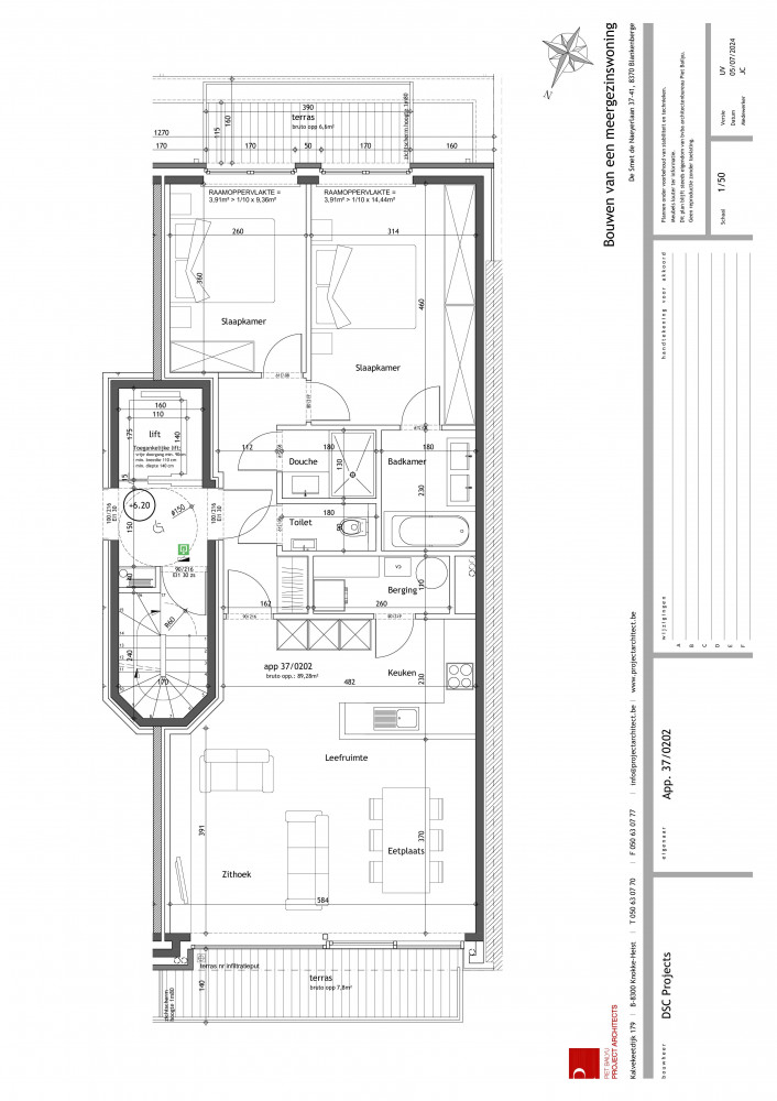
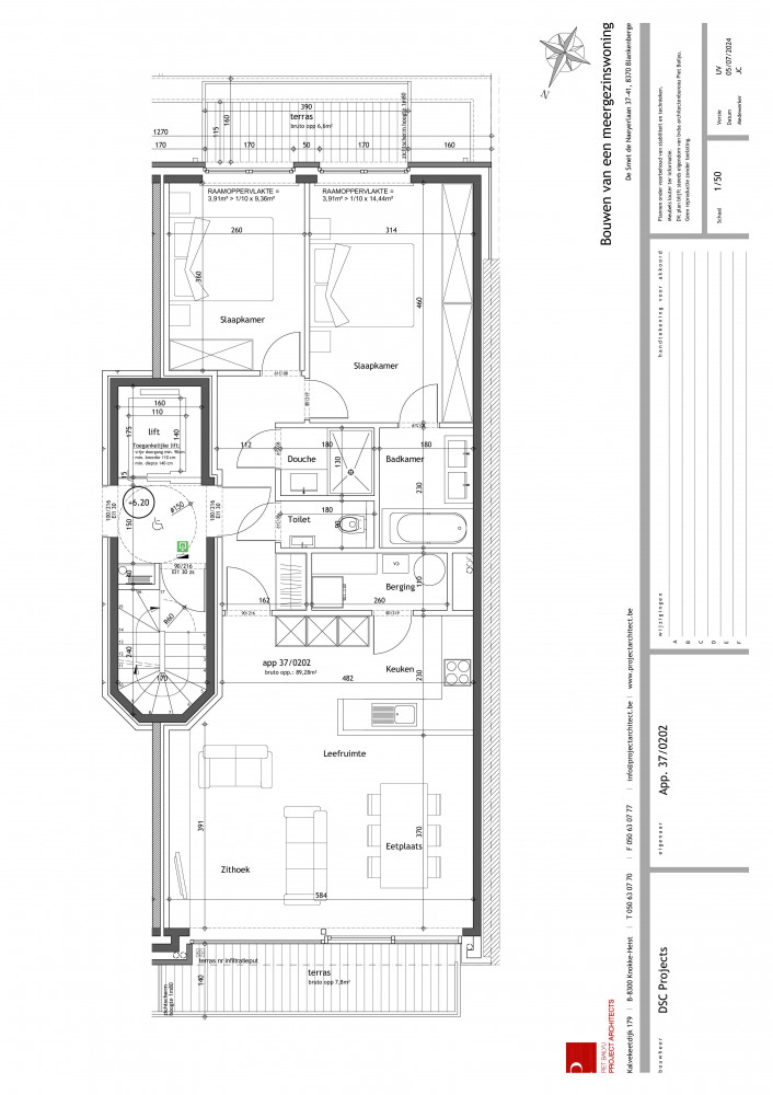
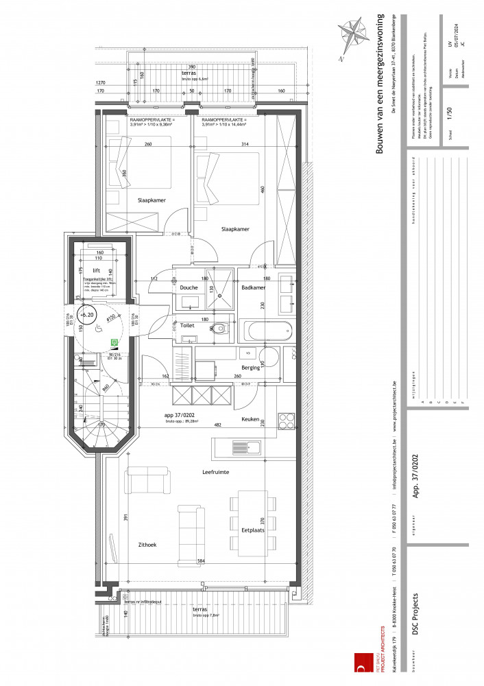
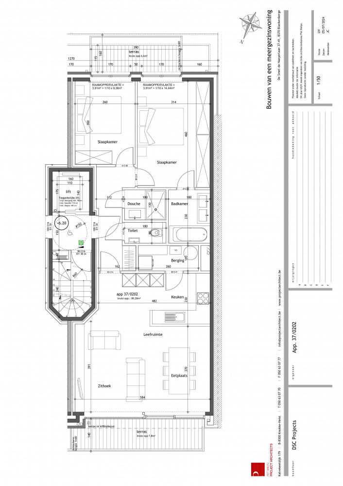
Appartement Res. Achille De Smet de Naeyerlaan 39
Appartement 02.02
Déscription
La résidence "Achille" est un nouveau projet avec des finitions de haute qualité et une vue fantastique sur le port et le parc Léopold, près de la Digue et du Grote Markt.
Ce projet se compose de:
- 6 appartements trés spacieux avec 2 chambres à coucher ;
- 2 appartements en duplex de 2 chambres à coucher ;
- 10 garages ;
Ces appartements BEN se caractérisent par leurs grands espaces de vie, leurs fantastiques terrasses à l'avant et à l'arrière, 2 salles de bains par appartement et des chambres très spacieuses.
+++ Pompe à chaleur en combinaison avec chauffage au sol.
+++ 2 locals à vélos.
+++ Local poubelle.
+++ débarras individuels au sous-sol.
+++ Garages dans l'immeuble
+++ Grandes terrasses à l'avant et à l'arrière.
+++ Possibilité d'achat au taux de TVA réduit de 6%.





